Từ nhỏ, khi quan sát cha - vốn là nhà thầu xây dựng - làm việc với bản vẽ thiết kế, cũng như cách thức công nhân hoàn thiện một ngôi nhà từ giai đoạn đổ móng bê tông, lợp mái, lát gạch, Cam Hồng Xuân Nghi đã yêu thích kiến trúc. Mối quan tâm ấy cứ lớn dần lên theo những thiết kế công trình mà Xuân Nghi tìm thấy qua từng trang tạp chí kiến trúc, nội thất.
Theo đuổi ngành kiến trúc
Kiến trúc là một ngành đặc thù nằm giữa 2 lĩnh vực nghệ thuật và kỹ thuật. Cùng với phối cảnh 3D thể hiện ý tưởng thiết kế sáng tạo và độc đáo là những bản vẽ kiến trúc 2D đáp ứng yêu cầu về công năng và kỹ thuật xây dựng.
“Là con gái nhưng mình bị cuốn hút bởi những bản vẽ thiết kế kỹ thuật 2D trong kiến trúc. Mình muốn đọc hiểu được ý nghĩa của những bản vẽ này và quyết tâm rèn luyện để có thể vẽ chúng”, Xuân Nghi chia sẻ về động lực đến với ngành kiến trúc. Cuối cùng, sau 11 tháng học tập, từ một cô bé mới tốt nghiệp trung học phổ thông, Xuân Nghi đã tự mình hoàn thiện tác phẩm đầu tay là bộ hồ sơ kiến trúc của biệt thự phố, bao gồm phối cảnh 3D nội ngoại thất, binh bố mặt bằng phân khu chức năng và khai triển bản vẽ 2D kiến trúc, điện nước. Đây là bước ngoặt quan trọng trên con đường thực hiện ước mơ trở thành kiến trúc sư của Xuân Nghi.
| Gia đình Xuân Nghi ủng hộ quyết định chọn nghề của cô, cho phép cô chọn hướng đi riêng sau khi tốt nghiệp cấp 3.
|
Không ngại học lại
Nhận thức và xác định rõ kiến thức là yếu tố quan trọng được thể hiện trên bản vẽ thiết kế, Xuân Nghi có phương pháp học rất bền chí và quyết liệt. Không phụ thuộc vào bảng điểm thi hết môn, nếu những nội dung quan trọng đã được học nhưng chưa nắm bắt đủ và đúng, Nghi sẽ chủ động xin phép giảng viên cho học lại môn học này với các lớp khóa sau.
Nói về học trò của mình, thạc sỹ, kỹ sư Thanh Trúc - giảng viên Trung tâm Đào tạo Kiến trúc CBS nhận xét: “Bao nhiêu năm đi dạy, tôi ấn tượng sâu sắc với Xuân Nghi bởi tính chịu khó và nhẫn nại rèn luyện khi học nghề mà em ấy yêu thích. Giảng viên không cần tạo áp lực bắt Xuân Nghi phải học mà ngược lại, em ấy tìm đến chúng tôi để được hướng dẫn cách làm đúng. Tôi đã quen với việc có một học trò nhỏ thường đứng bên ngoài chờ tôi kết thúc giờ dạy để xin gặp 15 phút”.
![]() |
| Lớp học thực hành vẽ Auto CAD trên máy tính của giảng viên Thanh Trúc trong chương trình Họa viên kiến trúc mà Xuân Nghi theo học.
|
Tự hào về ngành mình theo học
Xuân Nghi luôn cố gắng tìm kiếm những cách học phù hợp để hoàn thiện kiến thức và kỹ năng cần có đối với một người làm việc trong lĩnh vực kiến trúc. Vóc dáng nhỏ bé, cô sinh viên năm II Xuân Nghi đã có thể kiếm thêm thu nhập trang trải cho cuộc sống bằng công việc liên quan đến chuyên môn khi nhận vẽ khai triển bản vẽ kiến trúc 2D thành thạo.
| Xuân Nghi không ngừng tìm kiếm, học hỏi từ những buổi chuyên đề kiến trúc do Trung tâm Kiến trúc CBS tổ chức.
|
![]() |
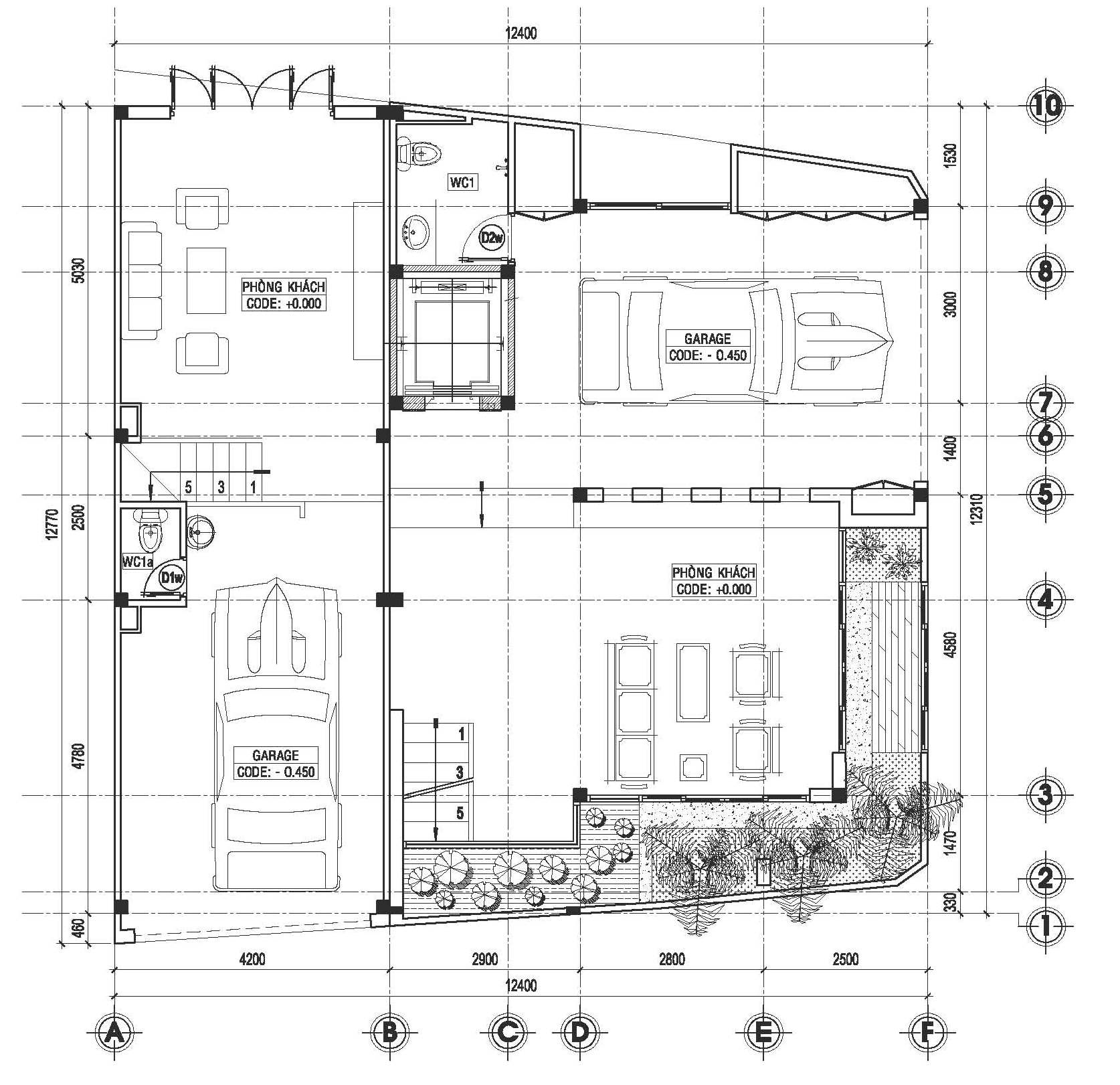
| Bản vẽ mặt bằng kiến trúc tầng trệt công trình biệt thự do Xuân Nghi cùng kiến trúc sư chủ trì thiết kế.
|
![]() |
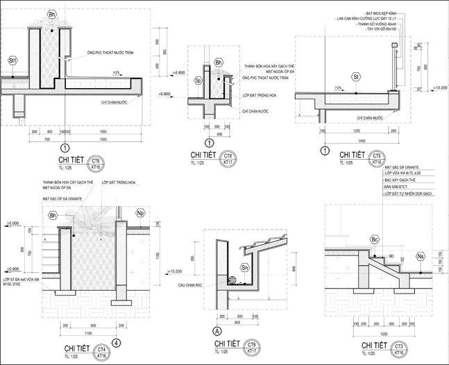
| Một trong 50 tờ danh mục bản vẽ 2D thiết kế chi tiết mà Xuân Nghi thực hiện trong đồ án biệt thự phố.
|
Xuân Nghi chia sẻ về chặng đường chinh phục bản vẽ thiết kế chỉ sau một thời gian ngắn theo học: “Chọn môi trường học nghề mà ở đó học viên được hướng dẫn, chỉ dạy bởi các kiến trúc sư, kỹ sư với hơn 12 năm kinh nghiệm đã giúp mình có những hướng đi đúng đắn cho tương lai. Hơn tất cả, mình được truyền cảm hứng và đam mê đối với nghề này để vượt qua những khi khó khăn”.
Chương trình nghề ngắn hạn 11 tháng mà Xuân Nghi theo gia học được đơn vị thiết kế của Nhật Bản và Trung tâm KTĐT - ĐH Bách Khoa TP HCM xây dựng và quản lý chất lượng đào tạo.
Người Nhật có thế mạnh về tính quy chuẩn, chính xác, được thể hiện trong các bản vẽ thiết kế kỹ thuật. Họ cũng phân cấp chương trình học ngắn hạn - dài hạn theo tính chất công việc sau khi tốt nghiệp.
Trung tâm Đào tạo Kiến trúc CBS (thuộc đơn vị thiết kế của Nhật Bản) tổ chức các khóa học kiến trúc, nội thất ngắn hạn (dưới một năm) dành cho các bạn trẻ mới bắt đầu, trên 18 tuổi. Khóa học không xét tuyển đầu vào. Học phí 11-12 triệu đồng trọn khóa học.
Website: www.cbs.edu.vn
Hotline: 0917 014 017.


