Căn hộ nhỏ được thiết kế độc đáo theo phong cách tối giản.
| |
Zing chia sẻ trải nghiệm tự thiết kế và decor nhà chung cư của Lê Ngọc Sơn (31 tuổi, kiến trúc sư ở Hà Nội).
Căn hộ của tôi là căn 1+1 có tổng diện tích 45 m2. Nó có một phòng ngủ và thêm không gian linh động khoảng 6 m2.
Tôi thấy diện tích nhà nhỏ và khoảng không gian cộng thêm không có giá trị nên quyết định decor lại nhà.
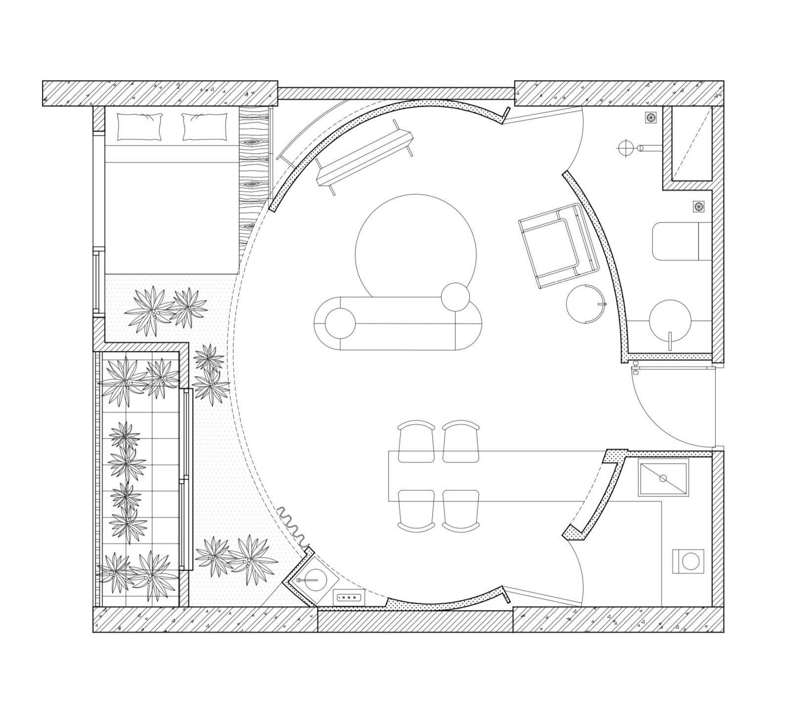
Phần thô
Tôi đã đập bỏ tất cả tường ngăn để ánh sáng lọt vào toàn bộ căn hộ. Sau đó, tôi thiết lập một hình ellipse ở trung tâm bằng chất liệu thạch cao. Điều này giúp tạo không gian sinh hoạt chung của gia đình và phân tách khu vực phụ là bếp và toilet.
![]() |
Ý đồ của tôi khi thiết kế là tạo không gian sinh hoạt chung lớn nhất có thể nhằm kết nối các thành viên trong gia đình. Phần rìa hình ellipse nâng cao, làm sàn gỗ tự nhiên để thành phòng ngủ nhưng vẫn có thể làm chỗ ngồi tiếp khách được.
Phòng ngủ và các khu vực phụ có diện tích khá khiêm tốn nhưng vừa đủ dùng cho nhu cầu tối thiểu.
![]() |
![]() |
Quầy bar làm bằng bê tông tươi trực tiếp với hệ cột dầm. Xu hướng phi kết cấu không lạ ở nước ngoài nhưng còn khá mới ở Việt Nam. Quầy bar này chủ yếu là nơi tôi pha chế cà phê. Nó cũng dài vừa đủ để làm bàn ăn.
![]() |
![]() |
Nội thất
Nội thất của căn hộ hướng đến sự tối giản cũng như tính đương đại. Tôi chọn hai chiếc ghế nổi tiếng là wassily của Breuer được sản xuất năm 1926 và chiếc ghế togo của hãng Ligne Roset làm điểm nhấn cho căn hộ.
![]() |
Những món đồ trang trí khác đều sử dụng các chất liệu thô mộc như bê tông, tường sơn giả đá, gỗ mộc tự nhiên. Tôi muốn hướng tới sự tối giản, tìm thấy vẻ đẹp trong sự không hoàn hảo của tinh thần wabi-sabi.
Với diện tích khiêm tốn, việc sống tối giản là điều cần thiết. Tuy nhiên không phải ai cũng có thể sống tối giản ngay được. Gia đình tôi tập làm quen với phong cách này bằng cách loại bỏ dần các đồ đạc không cần thiết.
![]() |
![]() |
Một lối sống tối giản sẽ khiến ta tận hưởng cuộc sống một cách tối đa. Trong khi giá nhà đất càng ngày càng đắt đỏ, tối giản sẽ là một xu thế trong tương lai.
Lời khuyên cho việc decor nhà
Không có giới hạn nào cho không gian kiến trúc nội thất. Bạn hãy lựa chọn sắp xếp không gian cho phù hợp với nhu cầu cũng như lối sống của mình. Hãy chọn một lối sống văn minh, gọn gàng, đừng chạy theo những thứ đắt đỏ mà bản thân không thực sự cần.







